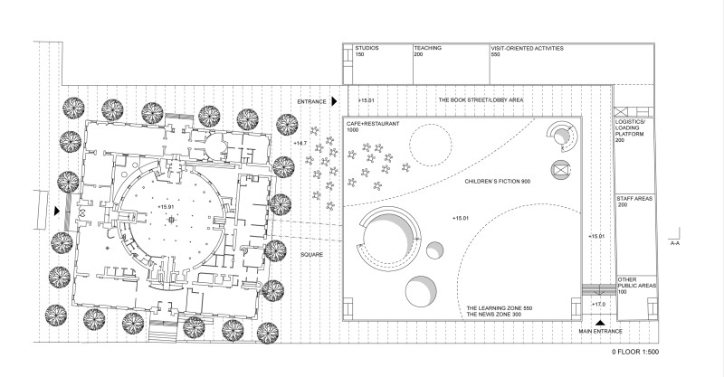
Juhana Marttinen Architects / Projects / Stockholm City Library Extension / Ground Floor